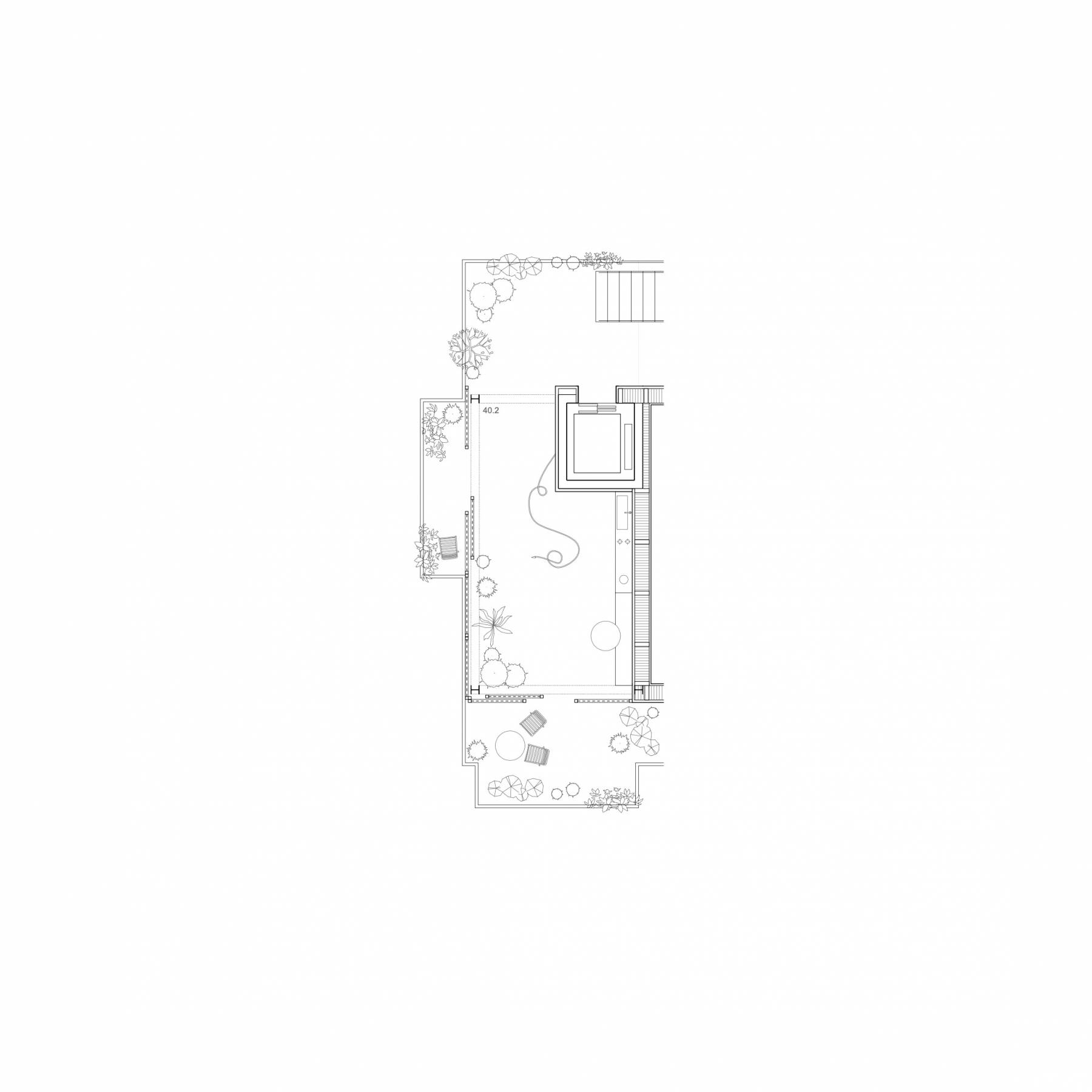
Pilotprojekt Schliengerweg

Project

Pilotprojekt Schliengerweg

Location

Basel - CH

Year

2023

Type

open competition

Size

1´000 m²

Collaborators

Diwersy Weimar, Giorgio Notari